04
Appartement à Toulouse (31)
Projet d’architecture d’intérieur pour rajouter une pièce dans le salon existant qui est trop grand et mal aménagé selon eux. Le but est de conserver un espace de réception convivial, réagencer l’espace, la cuisine le salon, l’entrée et la nouvelle pièce qui sera un bureau et une chambre d’ami.

La Solution : Création d’une Nouvelle Chambre d’Ami/Bureau et une Cuisine sur Mesure
J’ai élaboré un plan détaillé pour créer une nouvelle pièce polyvalente qui servirait à la fois de bureau fonctionnel pour le travail à domicile et de chambre accueillante pour les invités. De plus, la cuisine a été repensée sur mesure, en collaboration avec les clients et leur cuisiniste, pour maximiser l’efficacité et l’esthétique, créant ainsi un espace culinaire parfaitement adapté à leurs besoins.
La Problématique : Transformer un T3 en T4 avec un Maximum de Rangement Sans Sacrifier la Luminosité
Le défi était de passer d’un appartement T3 à un T4 tout en intégrant des espaces de rangement supplémentaires, le tout sans compromettre la luminosité naturelle de l’espace.


Le Moodboard : Inspiration pour la Décoration
De plus, j’ai créé un moodboard inspirant pour aider mes clients à sélectionner les pièces de décoration qui allaient compléter leur nouvel espace. Ce processus collaboratif a permis de donner une touche unique à leur intérieur, reflétant leur personnalité et leurs préférences.
Références : Canapé convertible – Maison du monde, Table basse – Westwing, Tapis – Maison du monde, Cadres – Desenio, Suspension – Maison du monde
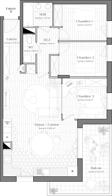
Le Plan Détaillé : Fondement de la Transformation
J’ai fourni à mes clients un plan détaillé de l’appartement, avec des dimensions précises, afin qu’ils puissent commencer leurs travaux en été 2023 en toute confiance. Ce plan a servi de base solide pour la mise en œuvre de la conception.

Contactez-Moi pour Votre Projet de Transformation d’Intérieur
Chez Charlotte Turpaud Interior Design, je suis passionnée par la transformation d’espaces de vie en lieux qui répondent parfaitement aux besoins et aux désirs de mes clients. Si vous envisagez une rénovation ou une réorganisation de votre intérieur à Toulouse, n’hésitez pas à me contacter. Je serais ravie de discuter de vos idées et de collaborer avec vous pour créer un espace qui vous ressemble.


