
Projet d’école d’architecture afin de créer une maison au bord de mer qui respecte les normes et pour un couple de personnes fraichement retraités avec un logement pour vacanciers intégré.

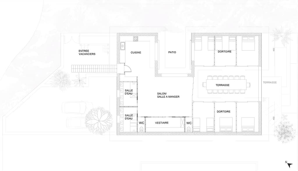
Plan Rez-de-chaussée
Aménagement d’un logement pour un couple qui vient d’être retraité. Nous avons pensé à leur créer des ateliers de création afin de leur permettre de se détendre dans cette période de vie. Cela leur permet aussi de recevoir leur famille. Ces deux ateliers sont accessibles par un patio arboré. Le séjour s’oriente directement sur la mer avec une terrasse sur différents niveaux qui mène sur la mer.
Plan Etage
L’étage est pensé pour être très ouvert avec une ventilation en toiture et les murs brut en pierre de taille. Des dortoirs sont créés face à la mer avec une table à manger pour se réunir pour leur petit déjeuner. Un accès différent a été créé pour stocker toutes leurs affaires de vacances.


Vue 3D de la cuisine salle à manger
Vue 3D du patio et des ateliers
